
品味设计之美,感悟精致人生
LIANGJIA DECORATE 烟台靓家装饰!
美式大宅 古典雅致
Latest case analysis &2021
美式古典 | 古朴温暖 | 沉稳气质


从事家装行业,靓家设计师们会遇到形形色色的业主,尽管他们有着不同的身份、性格,但找到靓家,都只有一个目的,那就是为家设计。而通过自己的双手以及公司各个团队的努力,将理想蓝图变成美好现实,对于靓家的每位设计师来说,是一件十分有成就感的事。
▲银和怡海山庄
靓家·案例概述
- Location - | 项目 银和怡海山庄
- House Type - | 户型 平层
- Design Style - | 风格 美式新古典
- Decorate Type - | 装修类型 全案
- Chief Designer - | 设计师 孙淑涛
设计说
Design theory



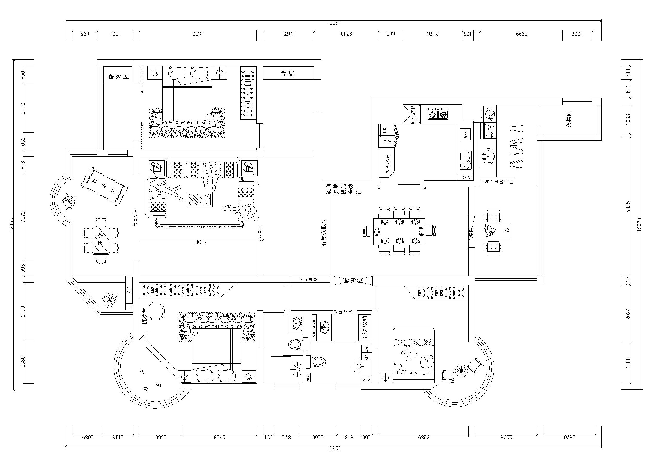
▲平面布置图
玄关の设计”
PORCH DESIGN

实景图↑↑↑
舒适与古老的典雅气息
加上强烈的传统符号运用
打造出具有浓重与深厚文化感的空间环境
整体质感强烈、温馨,线条更是柔和、细腻
似乎每一个细节都在诉说着
那个关于历史与印记的故事

客厅の设计”
LIVINGROOM DESIGN

效果图↑↑↑

客厅的设计十分抓人眼球
全家实木材质护墙板上墙
油漆面的墙板 看起来十分有光泽韵味
地面选择搭配美式风格常用的复古砖
不同材质、色彩的搭配
碰撞出不一样的视觉感
使人感到放松
更想深入室内探寻更多美好光景

效果图↑↑↑

实景图↑↑↑
客厅是最能表达一个家的整体风格调性的
会客区为空间增添了古典美式艺术气息
在空间中跟随光线的线性变换融合
电视背景墙采用大理石切割+护墙板造型
整体既表达出线条的规则
又可以品味古典艺术
给整个空间带来更多的美好
整体沉稳大气 散发出悠悠的古韵
餐厅の设计”
DININGROOM DESIGN

实景图↑↑↑
推杯换盏 把酒言欢
创造融合共生的氛围

书房の设计”

实景图↑↑↑

实景图↑↑↑

BEDROOM DESIGN
效果图↑↑↑

阳光房の设计”
SUN ROO DESIGN
实景图↑↑↑
面朝大海 春暖花开

实景图↑↑↑
身处于家中可以感受自然 享受亲情
回忆整个装修过程
都让彼此的距离更近了一步
LIANGJIA∣为品质而生
撰文 / 图片 ✎ 小编杨杨
未 经 允 许 请 勿 转 载 到 其 他 公 众 号