
品味设计之美,感悟精致人生
LIANGJIA DECORATE 烟台靓家装饰!
Latest case analysis &2021
现代轻奢 | 空间感受 | 精致生活


从事家装行业,靓家设计师们会遇到形形色色的业主,尽管他们有着不同的身份、性格,但找到靓家,都只有一个目的,那就是为家设计。而通过自己的双手以及公司各个团队的努力,将理想蓝图变成美好现实,对于靓家的每位设计师来说,是一件十分有成就感的事。
本案是一对新人结婚的婚房

靓家·案例概述

- Location - | 项目 龙海家园
- House Type - | 户型 平层
- Design Style - | 风格 现代简约
- Decorate Type - | 装修类型 全案
- Chief Designer - | 设计师 吴怡瑾

写在设计前
“想象一下未来你们在这个家里生活的情景”
“家里是谁做饭比较多,爱吃什么菜肴”
“有没有喜欢的风格及色系”
“您觉得自己/您的爱人是什么性格的人”
“有哪些生活习惯?喜欢睡硬床还是软床?”



整体设计风格灵感来源于陶渊明的 “采菊东篱下,悠然见南山”的意境,下班之后远离都市的喧嚣,更多的是一种简洁快活的生活方式,房子风格整体非常现代,看似简单,却是美学的最高境界,整体以明亮色调为主,赋以多层次的灯光设计来使简洁的空间又穿插了暖色的层次。

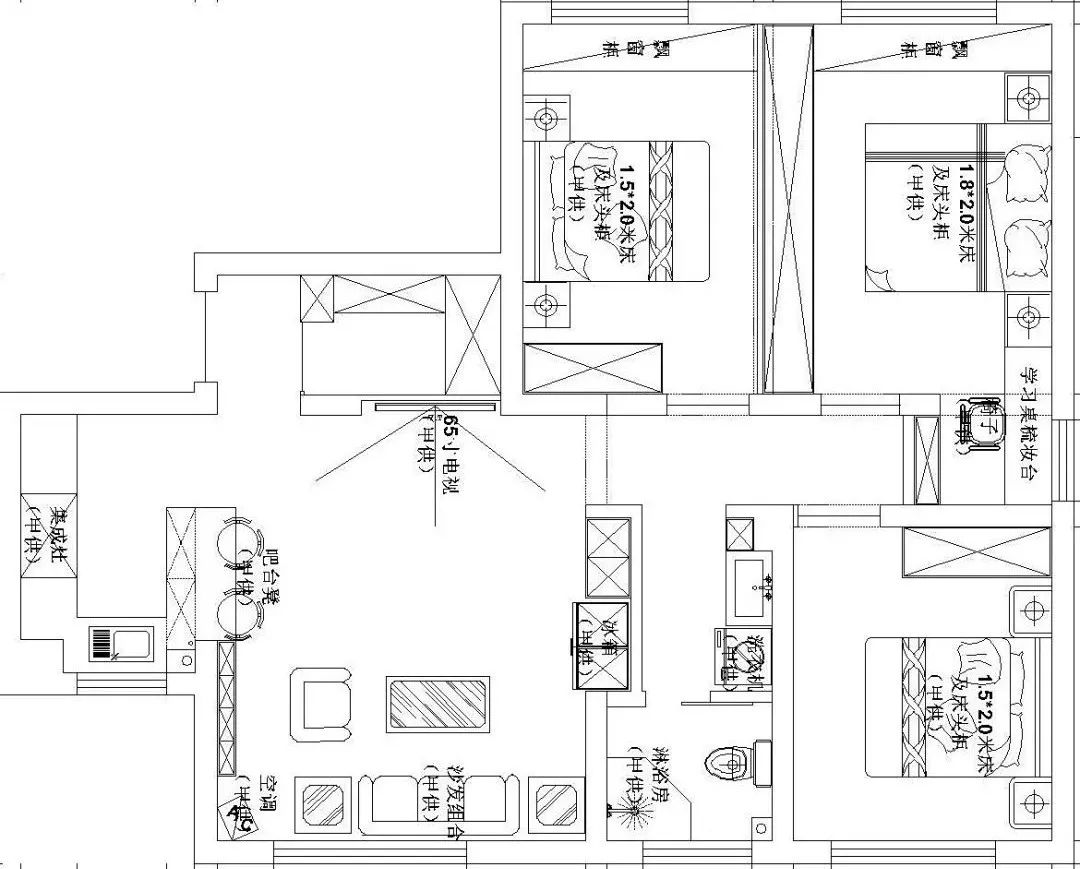
▲平面布置图
客厅の设计”
LIVINGROOM DESIGN

走进客厅
这里是使用率最高的
是一家人游戏互动
招亲待友的地方
需要更加通透大气

餐厅の设计”
DININGROOM DESIGN

餐厅保持了一致灰色调
却以不同的材质打造出丰富且协调的视觉
不规则环绕吊灯打造出空间的层

卧室就像是每个人的避难所
帮助我们逃离白天的忙碌


生活之美也正待一一被发现
Decorate a house to make a happy family





LIANGJIA∣为品质而生
一键导航↑↑↑
撰文 / 图片 ✎ 小编杨杨
未 经 允 许 请 勿 转 载 到 其 他 公 众 号